|
类别 |
描述 |
|
输入电源 |
AC220V/50Hz, |
|
备用电源 |
阀控密封式铅酸蓄电池,容量12V/12Ah,2节 |
|
应急时间 |
应急时间;切换时间 |
|
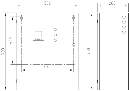
配置 |
工业PC板,2G内存,32G固态硬盘存储 |
|
显示操作 |
17寸液晶显示器,LED指示灯; 人机接口为鼠标键盘,按键; |
|
打印机 |
热敏打印机 |
|
下行总线 |
4个CAN总线:连接分配电装置与集中电源 |
|
上行总线 |
1个CAN:预留,可用于连接火灾报警控制器或其他用途; |
|
外壳材质 |
金属 |
|
防护等级 |
IP30 |
|
运行温度 |
0℃-45℃ |
|
类别 |
描述 |
|
输入电源 |
AC220V/50Hz, |
|
输出电源 |
DC36V,0.5kW |
|
备用电源 |
阀控密封式铅酸蓄电池,容量12V/38Ah,4节 |
|
本机功耗 |
10W |
|
应急时间 |
应急时间;切换时间 |
|
显示 |
点阵液晶显示,LED指示灯 |
|
操作方式 |
按键,开关操作 |
|
通讯总线 |
上行CAN |
|
外壳材质 |
金属 |
|
防护等级 |
IP30 |
|
运行温度 |
-10℃-45℃ |
|
安装方式 |
壁挂 |
|
类别 |
描述 |
|
输入电源 |
DC36V,0.5kW |
|
输出电源 |
回路输出电压DC36V,电流≤2A |
|
通讯回路 |
5回路 |
|
本机功耗 |
10W |
|
应急时间 |
应急时间;切换时间 |
|
显示 |
LED指示(主电、应急、故障) |
|
通讯总线 |
上行CAN/下行ABUS |
|
外壳材质 |
金属 |
|
防护等级 |
IP30 |
|
运行温度 |
-10℃-45℃ |
|
安装方式 |
壁挂 |
|
名称 |
型号 |
内容 |
安装方式 |
显示 |
|
集中电源集中控制型消防应急标志灯具 |
A-BLJC-2OEⅡ1W-A420 |
安全出口 |
吊挂 |
双面 |
|
A-BLJC-2LEⅡ1W-A420L |
左向指示 |
|||
|
A-BLJC-2LREⅡ1W-A420LR |
双向指示 |
|||
|
A-BLJC-1OEⅡ0.5W-A400 |
安全出口 |
单面 |
||
|
A-BLJC-1LEⅡ0.5W-A400L |
左向指示 |
|||
|
A-BLJC-1REⅡ0.5W-A400R |
右向指示 |
|||
|
A-BLJC-1LREⅡ0.5W-A400LR |
双向指示 |
|||
|
A-BLJC-1OEⅡ0.7W-A400F |
楼层指示 |
|||
|
A-BLJC-1OEⅡ0.5W-A401 |
安全出口 |
壁装 |
||
|
A-BLJC-1LEⅡ0.5W-A401L |
左向指示 |
|||
|
A-BLJC-1REⅡ0.5W-A401R |
右向指示 |
|||
|
A-BLJC-1LREⅡ0.5W-A401LR |
双向指示 |
|||
|
A-BLJC-1OEⅡ0.7W-A401F |
楼层指示 |
|||
|
A-BLJC-LEⅠ0.5W-A500L |
单向指示 |
地埋 |
||
|
A-BLJC-LREⅠ0.5W-A500LR |
双向指示 |
|||
|
集中电源集中控制型消防应急照明灯具 |
A-ZLJC-E3W-A600 |
照明 |
壁装 |
/ |
|
A-ZLJC-E3W-A601 |
嵌顶 |
/ |
||
|
A-ZLJC-E6W-A602 |
/ |












